
wij faciliteren en inspireren
Wij denken mee met onze klant, delen de passie voor authenticiteit en gastronomie en gaan geen enkele uitdaging uit de weg om een keuken precies zo af te leveren zoals jij het wil. Tenslotte maken we geen consensus als het gaat over kwaliteit en performantie. Wij willen niet alleen gepassioneerde chefs faciliteren met dit pareltje in de grootkeuken, maar hen ook inspireren om elke dag het beste van zichzelf te geven.

als familiebedrijfpur sang
Dominiek, Els, Dylan en Donnely of de familie Castelein. Hun passie voor gastronomie, authenticiteit en ondernemerschap werd hen letterlijk met de paplepel ingegeven. Vanuit deze familiale waarden, aangevuld met flexibiliteit en vakmanschap runnen ze samen het bedrijf en sturen ze hun team aan. Wie een bezoek brengt aan onze toontaal en ateliers proeft meteen de warme sfeer en de goesting voor het ondernemen.
eerste gesprek

basisplan + raming

finetunen plan
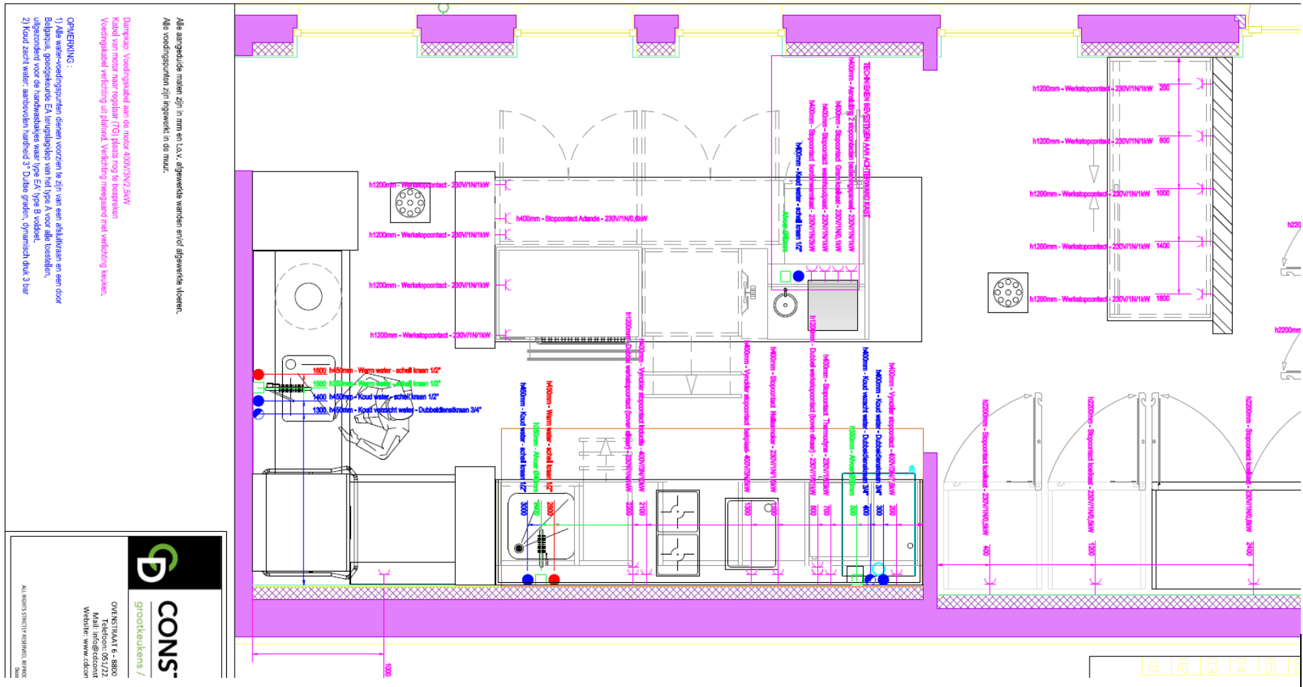
opmaak plan nutsvoorzieningen en productie
Nu begint het echte werk, de plannen voor de nutsvoorzieningen worden doorgegeven en de productie van jouw droomkeuken gaat van start. Wens je het gehele proces van nabij te volgen? Kom eens op bezoek!

installatie
Dan is de dag aangebroken waar je op gewacht hebt. Dé dag waarop jouw eigen Håndwerk keuken geïnstalleerd wordt. Alles bereiden we tot in de puntjes voor zodat we een vlotte assemblage op locatie kunnen garanderen.

naservice



